3 BBLT Cypress at Elkhorn RidgeTruesdale, MO 63380
Due to the health concerns created by Coronavirus we are offering personal 1-1 online video walkthough tours where possible.


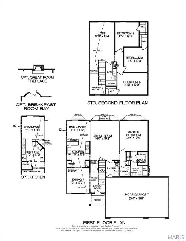
Open daily from 11-5. Contracts will be on builders forms. This 4 Bedroom, 2.5 Bath, 3 Car Garage, 1.5 Story home To Be Built can be customized to fit your needs. Features Include a 2 Story Entry Foyer, Separate Formal Dining which could also be used as an Office, a Great Room open to the Kitchen & Breakfast Room. The 2nd floor has 3 bedrooms each with their own walk in closet a Full Bath & a really nice size Loft. Other Features Include a Smoothtop Self Cleaning Range, Microwave & Dishwasher, Six Panel Doors, Satin Nickle Door Hardware, Choice of Cabinets to select from, 8" Deep Stainless Steel Sink, Pantry & Main Floor Laundry. The Exterior Includes 30 Yr. Architectural Shingles, Enclosed Soffits & Fascia, 42" Wide Curved Walkway, Egress Window & a Fully Sodded Yard.
| 2 months ago | Price changed to $380,900 | |
| 2 months ago | Listing updated with changes from the MLS® | |
| 3 months ago | Status changed to Active | |
| 2 years ago | Listing first seen on site |
Based on information submitted to the MLS GRID as of 2026-04-19 04:57 PM UTC. All data is obtained from various sources and may not have been verified by broker or MLS GRID. Supplied Open House Information is subject to change without notice. All information should be independently reviewed and verified for accuracy. Properties may or may not be listed by the office/agent presenting the information.

Did you know? You can invite friends and family to your search. They can join your search, rate and discuss listings with you.