1312 W Essex AvenueKirkwood, MO 63122
Due to the health concerns created by Coronavirus we are offering personal 1-1 online video walkthough tours where possible.




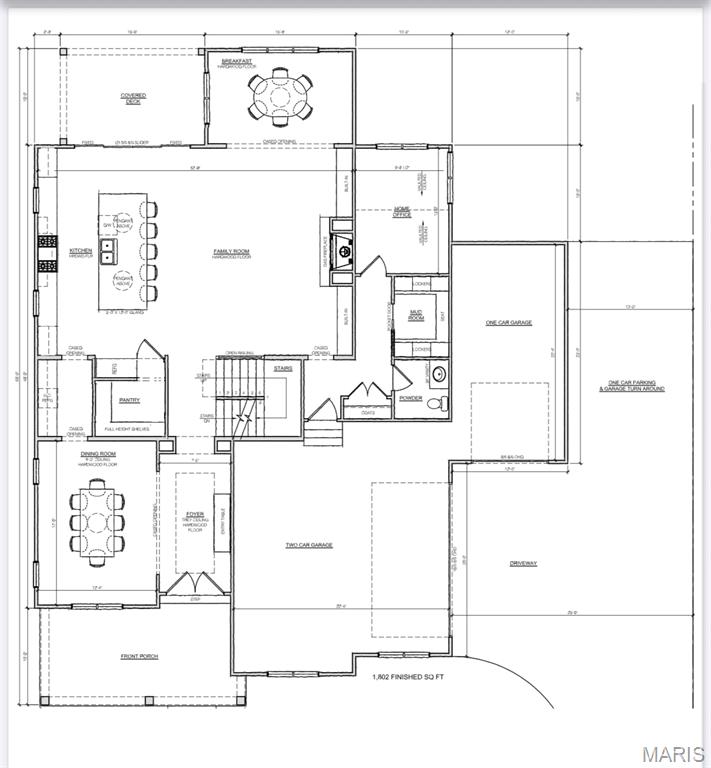
New beautiful home under construction featuring 5 bedrooms and 5.5 baths, with over 5,200 square feet of living space, including a walkout lower level and three-car side entry garage. The open floor plan showcases custom finishes throughout. The kitchen includes all-wood custom cabinetry, quartz countertops, a walk-in pantry, and upgraded appliances with a large 12’ sliding door connecting to a covered deck overlooking the large level yard. Retreat to the luxurious primary suite, complete with a spa-inspired bath offering an oversized shower, soaking tub, dual vanities, quartz counters, and an oversized closet with a St. Louis Closet System. Additional highlights include three separate ensuites with walk-in closets, 9’ ceilings throughout, 8’ solid core doors, fiberglass windows, and custom built-ins throughout.
| 3 months ago | Status changed to Active | |
| 3 months ago | Listing updated with changes from the MLS® | |
| 4 months ago | Listing first seen on site |
Based on information submitted to the MLS GRID as of 2025-12-07 10:39 AM UTC. All data is obtained from various sources and may not have been verified by broker or MLS GRID. Supplied Open House Information is subject to change without notice. All information should be independently reviewed and verified for accuracy. Properties may or may not be listed by the office/agent presenting the information.

Did you know? You can invite friends and family to your search. They can join your search, rate and discuss listings with you.