4368 Hunt AvenueSt Louis, MO 63110
Due to the health concerns created by Coronavirus we are offering personal 1-1 online video walkthough tours where possible.




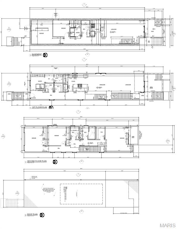
Your dream home in The Grove, to be built your way. This 2,600 sq ft new construction offers a rare choice: enjoy it as a 5 bed, 3.5 bath single-family home or opt for a 3 bed, 2.5 bath main residence plus a walk-out garden apartment with 2 beds, 1 bath, private laundry, and full kitchen—perfect for guests, rental income, or multi-generational living. Soaring ceilings, an open floor plan, and a show-stopping kitchen with waterfall island seating set the stage for modern living. Main floor laundry, luxury vinyl tile throughout, and an appliance package allowance with gas range option add style and convenience. Bathrooms feature striking tile with onyx accents, while the primary suite boasts a spa-like bath, large walk-in closet, and private balcony. Hardy board siding and optional detached carport add curb appeal. Buyers select all finishes, with allowances where noted. Live steps from The Grove’s restaurants, nightlife, and culture in a home designed just for you.
| 2 months ago | Status changed to Active | |
| 2 months ago | Listing updated with changes from the MLS® | |
| 9 months ago | Listing first seen on site |
Based on information submitted to the MLS GRID as of 2026-05-26 10:05 AM UTC. All data is obtained from various sources and may not have been verified by broker or MLS GRID. Supplied Open House Information is subject to change without notice. All information should be independently reviewed and verified for accuracy. Properties may or may not be listed by the office/agent presenting the information.

Did you know? You can invite friends and family to your search. They can join your search, rate and discuss listings with you.