12131 McKelvey RoadMaryland Heights, MO 63043
Due to the health concerns created by Coronavirus we are offering personal 1-1 online video walkthough tours where possible.




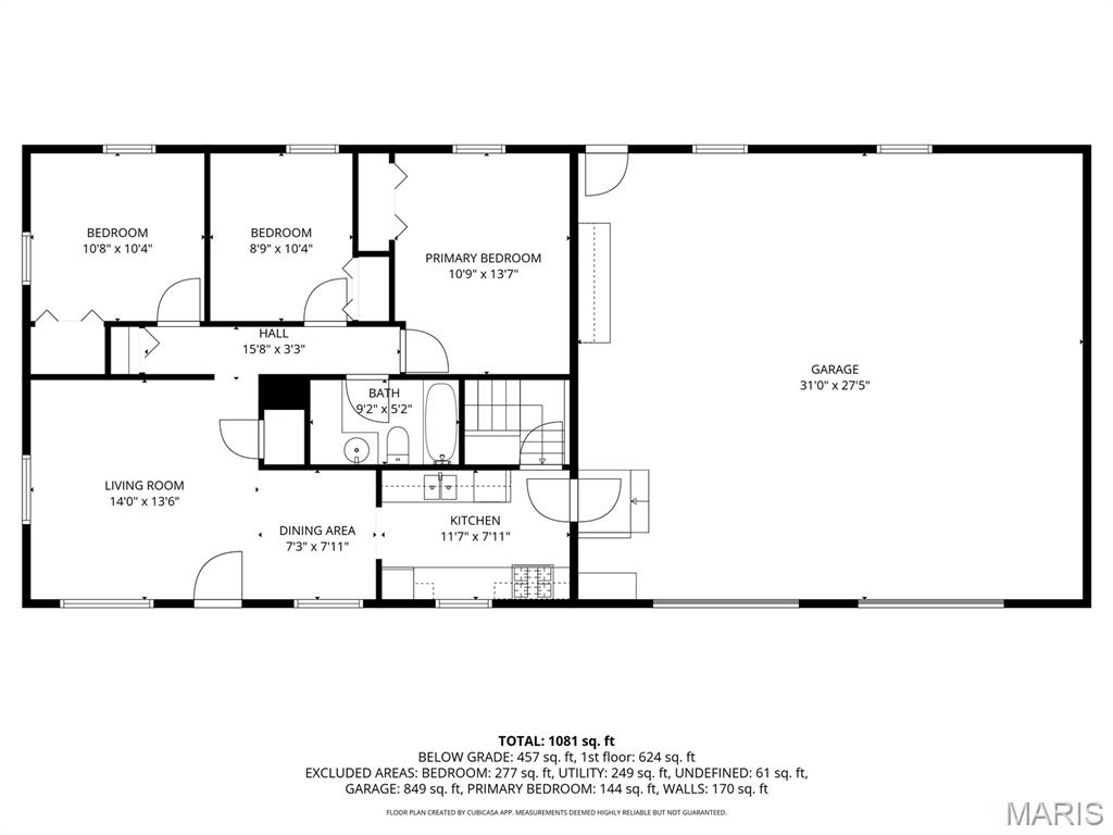
Welcome to 12131 McKelvey Road in Maryland Heights... an excellent opportunity for investors, renovators, or buyers seeking a project home with strong fundamentals. This well-maintained 3-bedroom, 2-bath ranch has been cared for over the years and remains largely in its original condition, offering a solid starting point for updates and value enhancement. The main level features a functional layout with three bedrooms, a full bath, and beautiful wood floors throughout the living areas and bedrooms. Natural light fills the living room, and the kitchen and dining area provide a practical footprint ready for renovation or redesign. The lower level adds significant usable space, including a spacious recreation room with wet bar, a full bathroom, an optional office or sleeping area, and a separate utility/laundry room. This flexible lower level presents multiple possibilities for expanded living space or future improvements. One of the standout features is the oversized garage, offering exceptional space for vehicles, tools, equipment, or workshop use. The large driveway allows for ample off-street parking, and the fenced backyard includes green space and a concrete patio. Some work is needed, and the property will qualify for cash or conventional financing only. The seller is open to completing the Maryland Heights occupancy inspection prior to closing but will not complete any required repairs, allowing buyers to understand minimum municipal requirements if a full renovation is not planned. Conveniently located with easy access to I-70 and I-270, this property offers a strong combination of location, layout, and potential... an ideal opportunity to renovate, invest, or customize. Schedule your showing today.
| 2 weeks ago | Status changed to Pending | |
| 2 weeks ago | Listing updated with changes from the MLS® | |
| 3 weeks ago | Listing first seen on site |
Based on information submitted to the MLS GRID as of 2026-01-19 12:40 AM UTC. All data is obtained from various sources and may not have been verified by broker or MLS GRID. Supplied Open House Information is subject to change without notice. All information should be independently reviewed and verified for accuracy. Properties may or may not be listed by the office/agent presenting the information.

Did you know? You can invite friends and family to your search. They can join your search, rate and discuss listings with you.