Willow14305 Woods Mill Crossing 101Town and Country, MO 63017
Due to the health concerns created by Coronavirus we are offering personal 1-1 online video walkthough tours where possible.



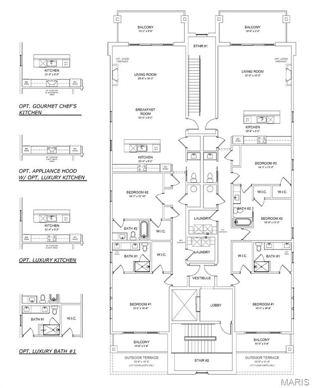
New Town & Country upscale condominium floorplan by McBride Homes featuring 2BR, 2.5BA will be ready winter 2026 at Hwy 141 and 40! 1st floor unit with black sliding glass doors and ceiling fans in the living room and primary bedroom, plus transom windows in the primary. Open concept living with expansive ceilings & wood laminate flooring throughout entire unit. Kitchen with level 6 Winstead cream cabinets with bronzed gold hardware, quartz counters & backsplash, GE stainless steel appliances, 36” gas cooktop, single wall oven, microwave & island w/breakfast bar. Primary bedroom walkin closet, ceiling fan, private bath and walkin shower. Second bedroom w/ceiling fan, walkin closet & private bath. Extras include laundry rm, half bathroom, storage closets, and bronzed gold fixtures. Each building is elevator-accessible w/secured lobbies, underground parking, & only two residences per floor. Renderings shown.
| 2 months ago | Price changed to $887,740 | |
| 2 months ago | Listing updated with changes from the MLS® | |
| 4 months ago | Status changed to Active | |
| 4 months ago | Listing first seen on site |
Based on information submitted to the MLS GRID as of 2026-05-22 08:43 AM UTC. All data is obtained from various sources and may not have been verified by broker or MLS GRID. Supplied Open House Information is subject to change without notice. All information should be independently reviewed and verified for accuracy. Properties may or may not be listed by the office/agent presenting the information.

Did you know? You can invite friends and family to your search. They can join your search, rate and discuss listings with you.