14301 Woods Mill Crossing 202Town and Country, MO 63017
Due to the health concerns created by Coronavirus we are offering personal 1-1 online video walkthough tours where possible.



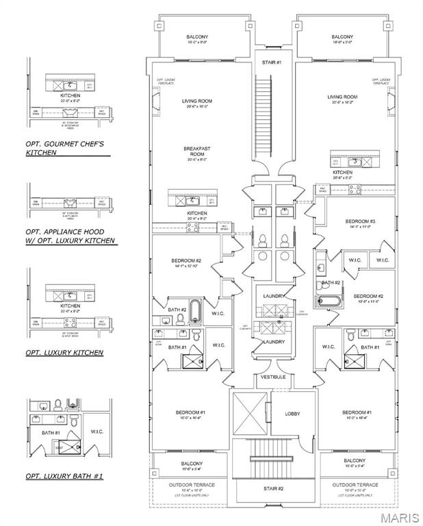
New Town & Country upscale condominium floorplan by McBride Homes featuring 2BR, 2.5BA will be ready fall 2026 at Hwy 141 and 40 with 1800 sq ft of living space! 2nd floor unit with black sliding glass doors and ceiling fans in the living room and primary bedroom, plus transom windows in the primary. Open concept living with expansive ceilings & wood laminate flooring throughout main living. Kitchen with level 4 Brellin white cabinets, quartz counters & backsplash, 30” gas range & island w/breakfast bar. Spacious living area with recessed can lights. Primary bedroom walk-in closet, ceiling fan, private bath with dual vanities, walk-in shower. Second bedroom w/ceiling fan, walk-in closet & private bath. Extras include laundry room, powder room, storage closets, and satin nickel fixtures. Each building is elevator-accessible with secured lobbies, underground parking, & only two residences per floor. Renderings shown.
| 3 weeks ago | Listing first seen on site | |
| 3 weeks ago | Listing updated with changes from the MLS® |
Based on information submitted to the MLS GRID as of 2026-02-06 02:55 PM UTC. All data is obtained from various sources and may not have been verified by broker or MLS GRID. Supplied Open House Information is subject to change without notice. All information should be independently reviewed and verified for accuracy. Properties may or may not be listed by the office/agent presenting the information.

Did you know? You can invite friends and family to your search. They can join your search, rate and discuss listings with you.